- Omschrijving
- Eigenschappen
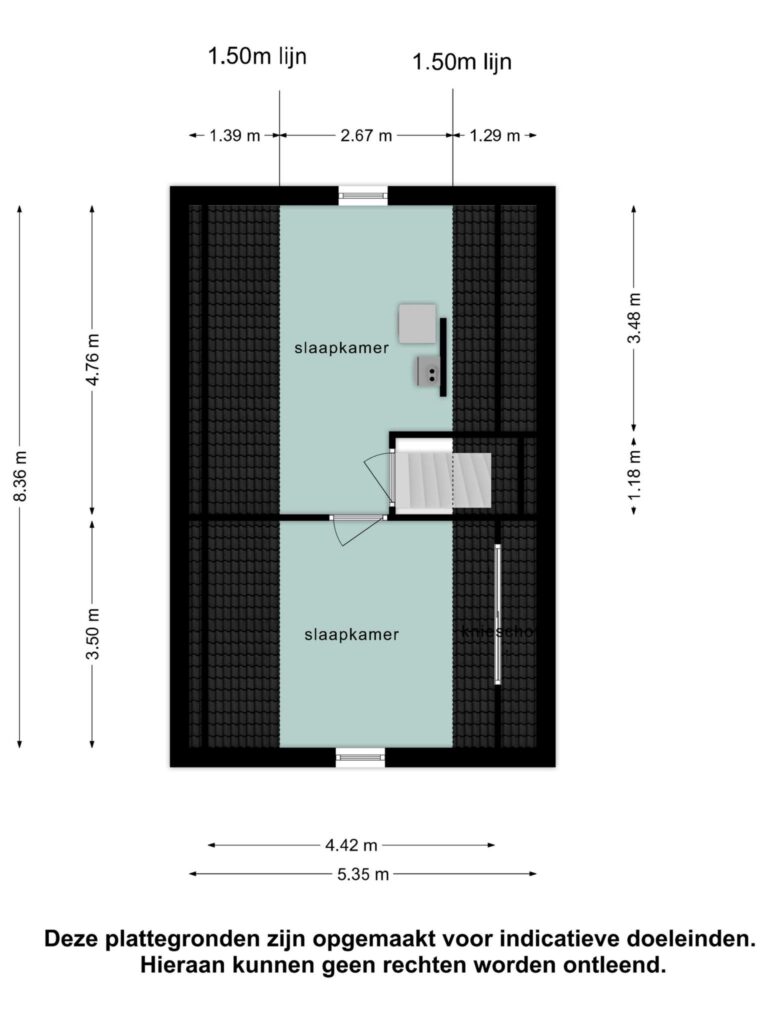
- Plattegrond
- Brochures
Prachtige 2-onder-1-kapwoning met een moderne uitstraling in het dorp Lemele!
Welkom bij Ds. Berkhofweg 43, een woning uit 1991 die je niet wilt missen. Met zijn energielabel A , een woonoppervlak van 128 m² en een inhoud van 550 m³, zul je merken dat dit huis niet alleen mooi is, maar ook duurzaam en verrassend veel ruimte heeft.
Bij binnenkomst wordt je direct gegrepen door de ruimte en de moderne inrichting van deze woning. Met maar liefst vier slaapkamers is er voldoende ruimte voor het hele gezin. Of je nu jonge kinderen hebt of tieners, iedereen kan hier zijn eigen plekje vinden.
Een blikvanger van deze woning is de uitbouw uit 2005, waardoor een riante woonkeuken tot stand is gekomen. De keuken is in 2016 geheel gemoderniseerd en is het kloppende hart van het huis geworden, waar je heerlijke maaltijden kunt bereiden terwijl je contact houdt met de gasten in de aanliggende woonkamer.
De ruime achtertuin is gelegen op het zuidwesten, is fraai aangelegd en biedt de perfecte balans tussen zon en schaduw. Geniet van de zonnige middagen in uw eigen privé-oase terwijl u ontspant op het terras of onder de fraai aangelegde overkapping.
En dan hebben we de fraaie ligging nabij de Lemelerberg nog niet eens genoemd! Wordt jij enthousiast van een flinke wandeling? Of geniet je meer van een prachtige fiets- of mountainbikeroute? Dan is deze woning iets voor jou! De Lemelerberg is gelegen op circa slechts 1 km afstand van de woning.
Mis deze kans niet om dit prachtige huis in bezit te krijgen. Neem vandaag nog contact met ons op om een bezichtiging te plannen.
Kopen
- Koopconditie
- k.k.
Algemeen
- Bouwvorm
- Bestaande bouw
Woning
- Huidig gebruik
- Woonruimte
- Huidige bestemming
- Woonruimte
- Permanente bewoning
- Ja
- Recreatiewoning
- Nee
- Liggingen
- Aan rustige weg, In centrum, Beschutte ligging
- Inhoud
- 550 m3
- Woonoppervlakte
- 128 m2
- Gebruiksoppervlakte overige functies
- 29 m2
- Buitenruimtes gebouwgebonden of vrijstaand
- 21 m2
- Perceel oppervlakte
- 358 m2
- Bouwjaar
- 1991
- Bouwjaar omschrijving
- 2005 uitgebouwd
- In aanbouw
- Nee
- Isolatievormen
- Volledig geïsoleerd
- Dak type
- Dwarskap
- Dak materialen
- Pannen
- Energieklasse
- A
- Energielabel einddatum
- 26 mei 2033
- Voorzieningen
- Mechanische ventilatie
- Parkeer faciliteiten
- Openbaar parkeren, Op eigen terrein
- Aantal kamers
- 6
- Aantal slaapkamers
- 4
Onderhoud binnen
- Waardering
- Goed
Onderhoud buiten
- Waardering
- Goed
Schuur / Berging
- Soort
- Aangebouwd steen
- Voorzieningen
- Voorzien van verwarming, Voorzien van elektra, Voorzien van water
- Isolatievormen
- Dakisolatie, Muurisolatie, Vloerisolatie, Dubbelglas, Gedeeltelijk dubbelglas, Voorzetramen, Volledig geïsoleerd, Geen spouw, Eco bouw, Geen isolatie
- Totaal aantal
- 1
Verwarming
- Soorten verwarming
- CV ketel
- CV ketel type
- Nefit
- CV ketel bouwjaar
- 2018
- CV ketel brandstof
- Gas
- CV ketel eigendom
- Eigendom
- CV ketel combiketel
- Ja
- Soorten warm water
- CV ketel
Tuin
- Tuintypen
- Achtertuin, Voortuin
- Kwaliteit
- Fraai aangelegd
Hoofdtuin
- Type
- Achtertuin
- Positie
- Noordwest
- Achterom
- Nee
- Lengte
- 1.475 m
- Breedte
- 1.030 m
- Oppervlakte
- 152 m2
Garage
- Soorten
- Aangebouwd steen
- Voorzieningen
- Verwarming, Elektra, Water
- Capaciteit
- 1
- Lengte
- 757 m
- Breedte
- 415 m
- Oppervlakte
- 31 m2
- Totaal aantal garages
- 1
Woonhuis
- Soort
- Eengezinswoning
- Type
- Twee onder één kapwoning
Plattegronden
