- Omschrijving
- Eigenschappen
- Plattegrond
- Brochures
Op zoek naar een instapklare, gasloze woning met lage energielasten? Deze moderne tussenwoning uit 2023 biedt het allemaal! Dankzij de warmtepomp (verwarmen én koelen via vloerverwarming) en 12 zonnepanelen op het zonnige zuiden geniet je van een energielabel A+++ en lage maandlasten.
De woning beschikt op de begane grond over een ruime uitbouw, waardoor een bijzonder lichte en ruime woonkamer is gecreëerd. Binnen geniet je van een modern en stijlvol interieur, met een comfortabele PVC-vloer op alle woonlagen en een op maat gemaakte inloopkast op de 1e verdieping.
De onderhoudsvriendelijke achtertuin op het zuiden beschikt over een achterom en vrijstaande berging.
Gelegen in een kindvriendelijke woonwijk, nabij het landelijke buitengebied: de perfecte combinatie van comfortabel wonen en de mogelijkheid van een ontspannen wandeling in het groen in de directe omgeving. Ook het dorpscentrum is goed bereikbaar, zowel te voet als per fiets. Hier bevinden zich diverse winkels, zoals supermarkt, drogist, bakker en bloemist.
Kortom: een toekomstbestendige woning op een geweldige plek!
INDELING:
Begane grond:
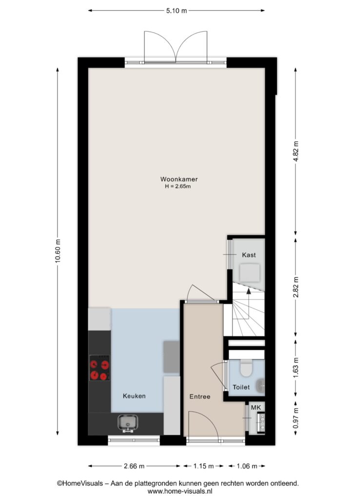
Entree / hal, moderne toiletruimte, meterkast en trapopgang naar de eerste verdieping; tuingerichte royale woonkamer met openslaande tuindeuren naar de achtertuin en een praktische trapkast. Open keuken met moderne keukeninrichting voorzien van diverse inbouwapparatuur, te weten: inductiekookplaat met geïntegreerde afzuiging, vaatwasser en combi-magnetron.
1e Verdieping:
Overloop, toegang tot twee slaapkamers en de badkamer. De masterbedroom is voorzien van een op maat gemaakte inloopkast. Royale badkamer voorzien van een inloopdouche, ligbad, toilet, wastafel en vloerverwarming.
2e Verdieping:
Vaste trap naar de multifunctionele zolderverdieping voorzien van een dakraam. Deze verdieping is een open ruimte en beschikt over een technische ruimte met opstelling van de warmtepomp en mechanische ventilatie. Verder vindt je hier de aansluiting voor de wasmachine.
BIJZONDERHEDEN:
– 12 zonnepanelen (oriëntatie op het zuiden).
– Optimaal geïsoleerd en duurzaam (gasloos), energielabel A+++.
– Kunststof kozijnen met HR beglazing.
– Warmtepomp met vloerverwarming (verwarmen en koelen).
– De gehele woning is voorzien van PVC vloer.
– Op de begane grond voorzien van een uitbouw aan de achterzijde.
– Vrijstaande houten berging in de achtertuin.
– Gunstige ligging nabij de provinciale weg N348, omliggende plaatsen als Zwolle, Raalte en Ommen zijn goed bereikbaar.
Het Veen 27 is niet zomaar en huis, het is een thuis waar je jarenlang met plezier zult wonen. Maak snel een afspraak voor een bezichtiging en ervaar zelf het comfort van deze woning. Welkom thuis!
Kopen
- Koopconditie
- k.k.
Algemeen
- Bouwvorm
- Bestaande bouw
BOG
- Object ID
- 0
Woning
- Huidig gebruik
- Woonruimte
- Huidige bestemming
- Woonruimte
- Permanente bewoning
- Ja
- Recreatiewoning
- Nee
- Liggingen
- Aan rustige weg, In woonwijk
- Inhoud
- 441 m3
- Woonoppervlakte
- 121 m2
- Gebruiksoppervlakte overige functies
- 0 m2
- Buitenruimtes gebouwgebonden of vrijstaand
- 0 m2
- Perceel oppervlakte
- 136 m2
- Bouwjaar
- 2023
- In aanbouw
- Nee
- Isolatievormen
- Volledig geïsoleerd, HR glas
- Dak type
- Zadeldak
- Dak materialen
- Pannen
- Energieklasse
- A+++
- Energielabel einddatum
- 1 december 2035
- Voorzieningen
- Mechanische ventilatie, Schuifpui, Dakraam, Glasvezel kabel, Zonnepanelen
- Parkeer faciliteiten
- Openbaar parkeren
- Aantal kamers
- 3
- Aantal slaapkamers
- 2
Onderhoud binnen
- Waardering
- Goed tot uitstekend
Onderhoud buiten
- Waardering
- Goed tot uitstekend
Schuur / Berging
- Soort
- Vrijstaand hout
- Voorzieningen
- Voorzien van elektra
- Totaal aantal
- 1
Verwarming
- Soorten verwarming
- Vloerverwarming geheel, Warmtepomp
- CV ketel combiketel
- Nee
Tuin
- Tuintypen
- Achtertuin, Voortuin
- Kwaliteit
- Verzorgd
- Totale oppervlakte
- 60 m2
Hoofdtuin
- Type
- Achtertuin
- Positie
- Zuid
- Achterom
- Ja
- Lengte
- 850 m
- Breedte
- 515 m
- Oppervlakte
- 44 m2
Garage
- Soorten
- Geen garage
Woonhuis
- Soort
- Eengezinswoning
- Type
- Tussenwoning
Plattegronden
