- Omschrijving
- Eigenschappen
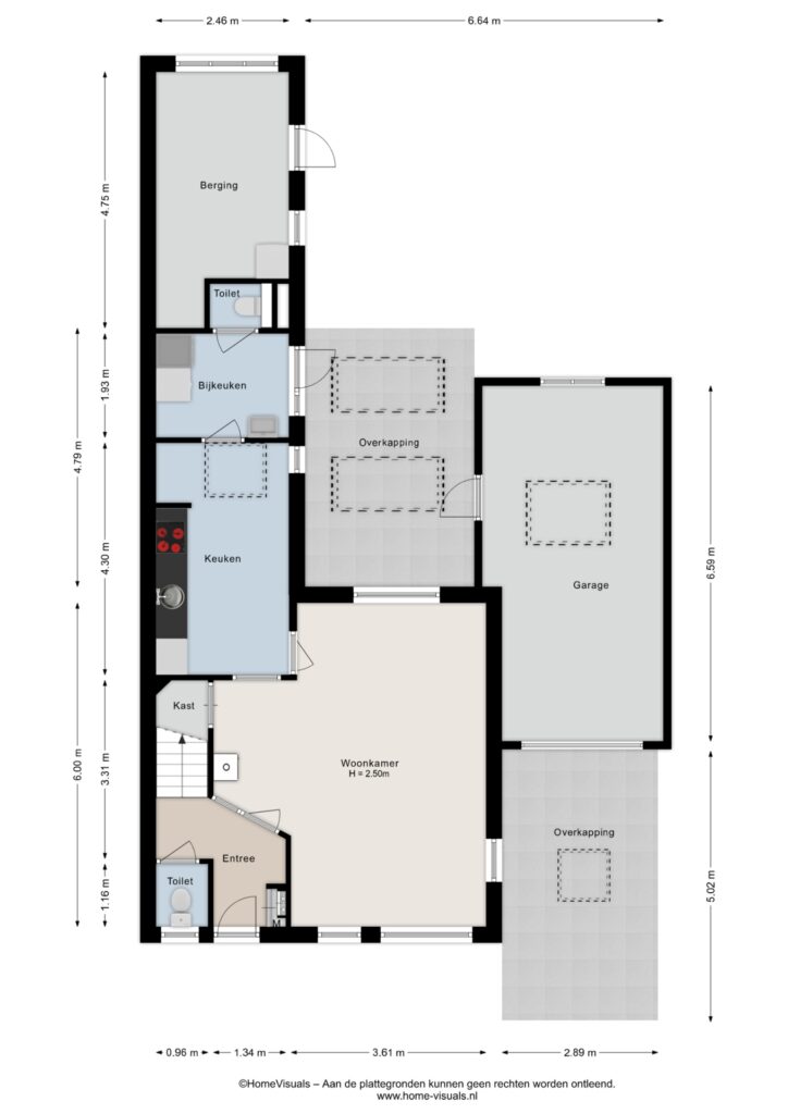
- Plattegrond
- Brochures
Gezocht: nieuwe bewoners voor deze fijne woning aan de P. Buismanstraat 81 in Lemelerveld!
Op een gewilde en rustige locatie, aan de rand van het dorp, staat deze hoekwoning op een royaal perceel van maar liefst 358 m². De woning is voorzien van een aangebouwde berging, garage en carport.
De royale achtertuin met veel privacy is een van de echte pluspunten van deze woning. Via het zijpad is de tuin gemakkelijk bereikbaar en aan de achterzijde van de woning bevindt zich een fraaie overkapping met lichtkoepels: een heerlijke plek om het hele jaar door buiten te zitten.
Binnen én buiten biedt deze woning volop mogelijkheden. Er zijn diverse opties om uit te bouwen en zo extra leefruimte te creëren, volledig naar eigen wens.
De ligging maakt deze woning extra bijzonder. In deze gemoedelijke en kindvriendelijke woonwijk woon je op slechts enkele minuten lopen of fietsen van het centrum. Daarnaast is de Lemelerberg op korte afstand gelegen. Hier kun je heerlijk wandelen, fietsen en genieten van rust en natuur — een uniek stukje buitengebied praktisch om de hoek.
INDELING:
Begane grond:
Entree, hal met meterkast, toilet en trapopgang naar de verdieping; woonkamer voorzien van gashaard, airco (verwarmen en koelen) en provisiekast onder de trap; afgesloten keuken met keukeninrichting voorzien van o.a. een inductie kookplaat en elektrische oven; bijkeuken met aansluitingen voor witgoedapparatuur, uitstortgootsteen en achteringang; 2e toilet.
Eerste verdieping:
Overloop, drie slaapkamers, waarvan één voorzien van een airco (verwarmen en koelen) en één kamer met vide; badkamer voorzien van wastafelmeubel en inloopdouche, toegang tot dakterras.
Tweede verdieping:
Via vlizotrap bereikbare bergzolder met opstelplaats cv-installatie.
BIJZONDERHEDEN:
– Perceeloppervlakte van maar liefst 358 m2.
– 12 zonnepanelen.
– 2 airco’s (verwarmen en koelen).
– Aangebouwde berging en garage met carport.
– De ruime oprit biedt plaats voor maar liefst drie auto’s.
– Overkapping aan de achterzijde van de woning voorzien van lichtkoepels.
– Gemoedelijke en kindvriendelijke woonwijk.
– Gunstige ligging nabij de provinciale weg N348, waardoor omliggende plaatsen als Zwolle, Raalte en Ommen goed bereikbaar zijn.
Kortom: een woning met volop mogelijkheden en een geweldige ligging. Ben jij klaar om hier jouw nieuwe thuis van te maken? Maak dan snel een afspraak voor een vrijblijvende bezichtiging, je bent van harte welkom!
Kopen
- Koopconditie
- k.k.
Algemeen
- Bouwvorm
- Bestaande bouw
Woning
- Huidig gebruik
- Woonruimte
- Huidige bestemming
- Woonruimte
- Permanente bewoning
- Ja
- Recreatiewoning
- Nee
- Liggingen
- In woonwijk
- Inhoud
- 452 m3
- Woonoppervlakte
- 88 m2
- Gebruiksoppervlakte overige functies
- 34 m2
- Buitenruimtes gebouwgebonden of vrijstaand
- 34 m2
- Perceel oppervlakte
- 358 m2
- Bouwjaar
- 1982
- In aanbouw
- Nee
- Isolatievormen
- Dakisolatie, Muurisolatie, Gedeeltelijk dubbelglas
- Dak type
- Zadeldak
- Dak materialen
- Pannen
- Energieklasse
- C
- Energielabel einddatum
- 19 november 2035
- Voorzieningen
- Buitenzonwering, Airconditioning, Zonnepanelen
- Parkeer faciliteiten
- Op eigen terrein
- Aantal kamers
- 4
- Aantal slaapkamers
- 3
Onderhoud binnen
- Waardering
- Redelijk tot goed
Onderhoud buiten
- Waardering
- Goed
Schuur / Berging
- Soort
- Aangebouwd steen
- Voorzieningen
- Voorzien van elektra
- Totaal aantal
- 1
Verwarming
- Soorten verwarming
- CV ketel, Gashaard
- CV ketel type
- Vaillant
- CV ketel brandstof
- Gas
- CV ketel eigendom
- Eigendom
- CV ketel combiketel
- Ja
- Soorten warm water
- CV ketel
Tuin
- Tuintypen
- Achtertuin, Voortuin
- Kwaliteit
- Verzorgd
- Totale oppervlakte
- 150 m2
Hoofdtuin
- Type
- Achtertuin
- Positie
- Noord
- Achterom
- Ja
- Lengte
- 1.400 m
- Breedte
- 930 m
- Oppervlakte
- 130 m2
Garage
- Soorten
- Aangebouwd steen, Carport
- Voorzieningen
- Elektra
- Capaciteit
- 1
- Lengte
- 659 m
- Breedte
- 289 m
- Oppervlakte
- 19 m2
- Isolatievormen
- Geen isolatie
- Totaal aantal garages
- 1
Woonhuis
- Soort
- Eengezinswoning
- Type
- Hoekwoning
Plattegronden
