- Omschrijving
- Eigenschappen
- Plattegrond
- Brochures
Ben je op zoek naar een instapklaar, duurzaam appartement met een riant terras op het zuiden?
Dan is dit moderne en keurig afgewerkte appartement precies wat je zoekt! Gelegen op de eerste en tweede verdieping van een kleinschalig appartementencomplex biedt deze woning aan de Weidelanden 2a in Lemelerveld een rustige en prettige woonomgeving.
Het appartement is volledig geïsoleerd en beschikt en is voorzien van drie zonnepanelen. Hierdoor geniet je van een comfortabel binnenklimaat en lage energiekosten.
De nabijheid van het centrum van Lemelerveld zorgt ervoor dat alle dagelijkse benodigdheden binnen handbereik zijn. Hier is ruime (gratis) parkeergelegenheid, een supermarkt, bakker, drogist, kapper en meer, zoals een bibliotheek, horeca en het “Kulturhus” waar diverse activiteiten georganiseerd worden.
Het Sallandse dorp Lemelerveld ligt op circa 10 kilometer van Raalte, Heino, Ommen en Dalfsen. Op fietsafstand vind je de Lemelerberg, deel uitmakend van de Sallandse Heuvelrug. Hier is het genieten van de rust en de natuur.
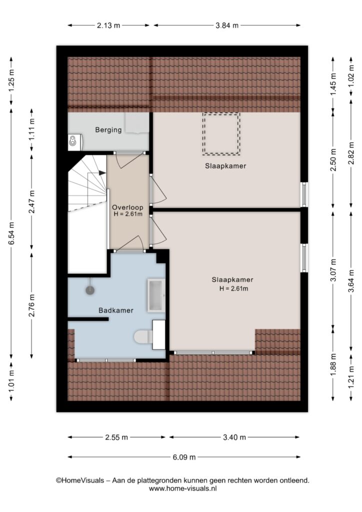
INDELING:
Eerste verdieping:
Entree met modern toilet en meterkast; ruime, lichte woonkamer (27m2) met ruime lounge-hoek, een eethoek met schuifpui naar het riante terras. Een strakke open keuken voorzien van 5 pits gaskookplaat, afzuigkap, vaatwasser, koelkast, vriezer, combi-stoomoven en koffiezetapparaat.
Tweede verdieping
Overloop met toegang tot de master-bedroom, een slaap/werkkamer en een keurige badkamer voorzien van inloopdouche, badkamermeubel en toilet; berging met was-machineaansluitng.
BIJZONDERHEDEN:
– Volledig geïsoleerd, 3 zonnepanelen, energielabel A.
– Zeer lage maandelijkse energielasten.
– Kunststof kozijnen.
– Vrijstaande berging
– Riant terras op het zuiden.
– VVE bijdrage is € 64,- per maand.
– Voldoende parkeergelegenheid.
– Circa 25 autominuten van Zwolle en Deventer.
Nieuwsgierig geworden? Aarzel niet en maak snel een afspraak voor een bezichtiging om zelf het comfort te ervaren!
Kopen
- Koopconditie
- k.k.
Algemeen
- Bouwvorm
- Bestaande bouw
Woning
- Huidig gebruik
- Woonruimte
- Huidige bestemming
- Woonruimte
- Permanente bewoning
- Ja
- Recreatiewoning
- Nee
- Liggingen
- In woonwijk
- Inhoud
- 238 m3
- Woonoppervlakte
- 88 m2
- Gebruiksoppervlakte overige functies
- 0 m2
- Buitenruimtes gebouwgebonden of vrijstaand
- 0 m2
- Bouwjaar
- 2014
- In aanbouw
- Nee
- Isolatievormen
- Dakisolatie, Muurisolatie, Vloerisolatie, Dubbelglas, Gedeeltelijk dubbelglas, Voorzetramen, Volledig geïsoleerd, Geen spouw, Eco bouw
- Dak type
- Zadeldak
- Dak materialen
- Pannen
- Energieklasse
- A
- Energielabel einddatum
- 1 december 2025
- Voorzieningen
- Mechanische ventilatie, Zonnecollectoren, Schuifpui, Dakraam, Glasvezel kabel, Zonnepanelen
- Parkeer faciliteiten
- Openbaar parkeren
- Aantal kamers
- 3
- Aantal slaapkamers
- 2
Onderhoud binnen
- Waardering
- Goed tot uitstekend
Onderhoud buiten
- Waardering
- Goed tot uitstekend
Schuur / Berging
- Soort
- Vrijstaand hout
- Voorzieningen
- Voorzien van elektra
Verwarming
- Soorten verwarming
- CV ketel
- CV ketel type
- Intergas
- CV ketel bouwjaar
- 2014
- CV ketel brandstof
- Gas
- CV ketel eigendom
- Eigendom
- CV ketel combiketel
- Ja
- Soorten warm water
- CV ketel
Tuin
- Tuintypen
- Geen tuin
Hoofdtuin
- Achterom
- Nee
Garage
- Soorten
- Geen garage
Appartement
- Soort
- Bovenwoning
- Kenmerk
- Appartement
- Open portiek
- Nee
- Woonlaag
- 2
- Aantal woonlagen
- 2
Plattegronden
